Vicarage Gardens, Church Crookham, GU52
Make Enquiry
Please complete the form below and a member of staff will be in touch shortly.
Property Features
- Extended and fully refurbished
- Refitted kitchen with appliances
- Driveway and single garage
- Cul- De-Sac Location
- Private Rear Garden
- Courtmoor Catchment
Property Summary
Full Details
Property
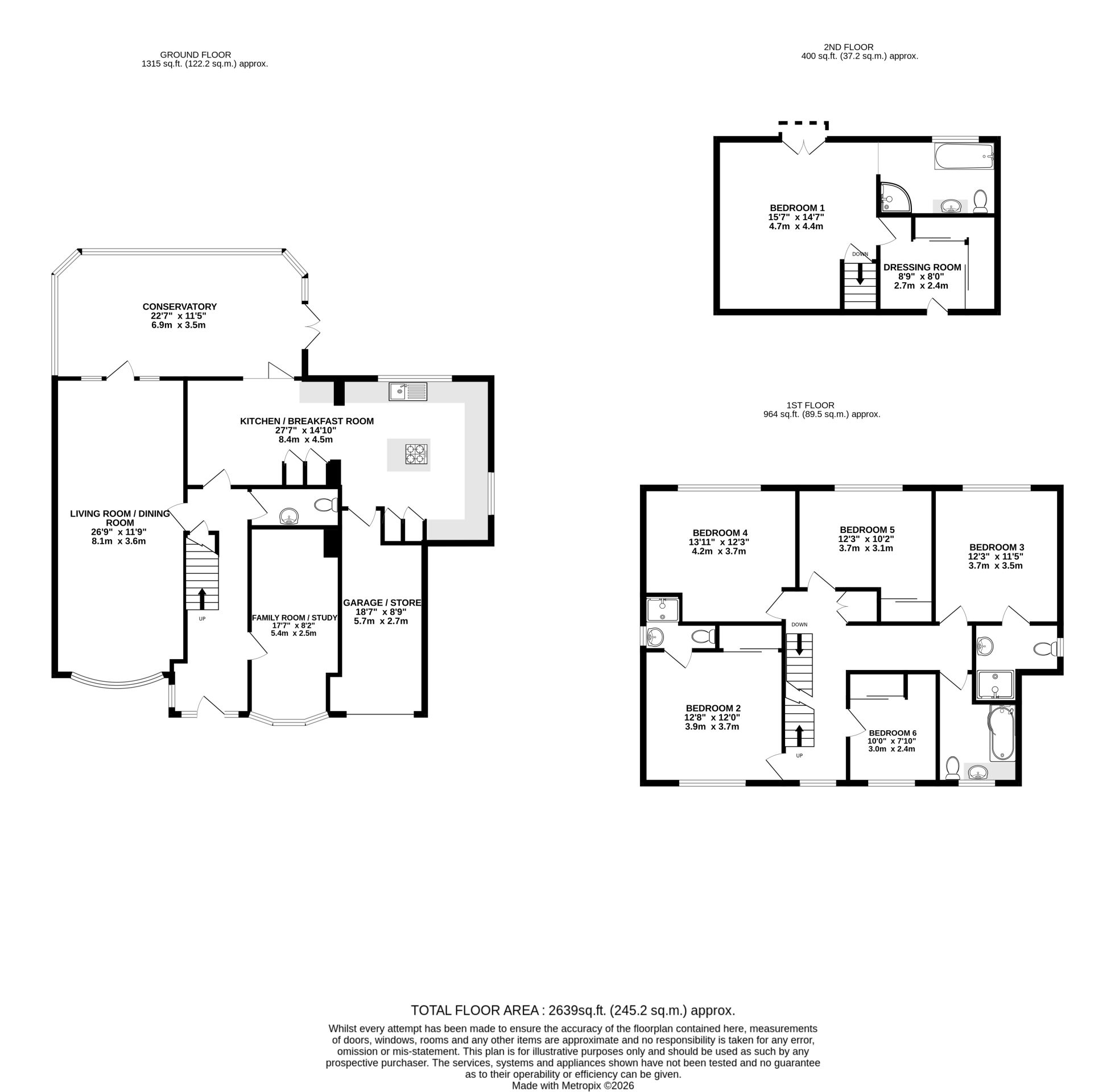
This impressive six bedroom detached home is set in a highly sought after non estate location, conveniently positioned close to well regarded local schools. The property has been extended and extensively refurbished by the current owners, creating a spacious and modern family home finished to a high standard throughout.
Ground Floor
The ground floor offers versatile and well proportioned living accommodation. A particular highlight is the kitchen/dining room, recently upgraded with new cabinetry and integrated appliances, providing a sleek and functional space. Doors open through to a bright conservatory, creating a wonderful flow and an ideal setting for hosting guests. Additional ground floor accommodation includes a living room, a dining room, and a family room or study, offering flexibility for a variety of needs. A convenient cloakroom/WC completes the ground floor.
First and Second Floors
The first floor comprises of five generously sized bedrooms, providing ample space. Bedrooms two and three benefit from their own refitted en-suite shower rooms, while the remaining bedrooms are served by a family bathroom. Occupying the entire second floor, the principal bedroom offers a private and spacious retreat, complete with a dressing room, modern en-suite bathroom and a Juliette balcony.
Outside
To the front of the property there is a driveway providing off road parking for several vehicles, along with access to a single garage, creating practical and convenient parking for the household and visitors. The property enjoys an attractive frontage and sits within a well established setting in this popular residential location. To the rear, the garden offers a pleasant outdoor space, featuring a generous patio area ideal for outdoor dining and entertaining. Steps lead up to an elevated lawned garden, providing a further area for family use.

























































