Damson Drive, Hartley Wintney, RG27
Make Enquiry
Please complete the form below and a member of staff will be in touch shortly.
Property Features
- No Onward Chain
- Driveway Parking With Ev Charging
- Garage
- Beautifully Presented
- Remodelled in 2019
- Bathrooms Re Fitted In 2023
- Landscaped Courtyard Garden
Property Summary
Full Details
The Property
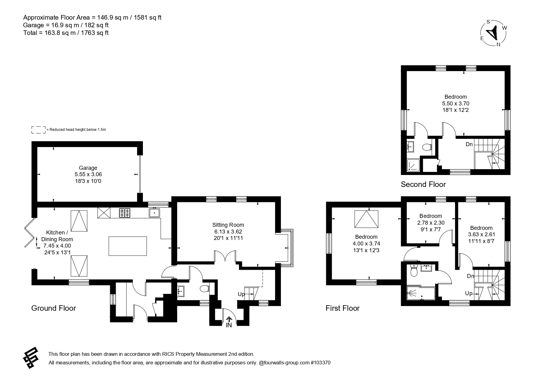
A beautifully presented four bedroom detached family home offering spacious, modern accommodation, ideally suited to comfortable family living. Set alongside a private driveway and an integrated garage. The property, which was fully remodelled in 2019, is offered with no onward chain and combines practical layout with elegant, contemporary presentation throughout.
Ground Floor
The property is entered via a bright and welcoming entrance hall, providing access to the main living areas with oak engineered wood flooring throughout. The main lounge is a generous dual aspect room, featuring large windows that flood the space with natural light, making it ideal for both relaxing and entertaining. The kitchen/dining room is finished to a high standard with sleek work surfaces, quality cabinetry and a full range of NEFF and Bosch integrated appliances. A breakfast area provides an informal dining option, while a separate utility room adds further practicality with an external door. The downstairs cloakroom completes the ground floor.
First Floor
On the first floor are three generously sized bedrooms, with two enjoying dual aspect windows, complemented by a fully tiled contemporary main bathroom.
Second Floor
The main bedroom benefits from triple aspect windows, a stylish fully tiled en suite shower room, finished with contemporary fixtures.
Outside
Externally, the property benefits from a private driveway with EV charging point to the side providing ample off-road parking and access to the integrated garage. The front and rear gardens, landscaped and planted in 2019, offer a pleasant outdoor space suitable for both relaxation and family use.



































